Peracetic acid (PAA) offers cost-effective disinfection for Louisiana wastewater plant
Key Highlights
- PAA offers a safe, cost-effective alternative to UV and chlorine disinfection, with lower chemical and operational costs.
- Routine monitoring by experts ensures PAA disinfection maintains compliance and minimizes environmental impact, particularly on wetlands.
- PAA reduces endocrine-disrupting compounds, making it environmentally preferable for sensitive water bodies.
- Implementation of PAA has resulted in significant labor and chemical cost savings, along with improved disinfection performance.
Peracetic acid has been used in the wastewater industry for several years now, and the city of Mandeville, Louisiana, undertook a project to make the modification from ultraviolet light to peracetic acid disinfection for discharge into natural wetlands for assimilation.
Peracetic acid, otherwise known as peroxyacetic acid or PAA, has been used as an alternative to chlorine as a wastewater disinfectant since it received federal approval in 2006. A powerful oxidizer, PAA has several advantages over chlorine chemistries, including lower costs, lower chemical use, shorter contact time, fewer process steps, safer (no risk management program required) and does not form disinfection byproducts.
Why Mandeville sought PAA over UV for disinfection
Due to the unique location of the wastewater treatment system in Mandeville, the plant outfalls discharge cleaned water directly into natural forested and non-forested wetlands. This arrangement eliminates any possibility of discharging into a receiving stream for dilution; therefore, the discharged effluent must be fully treated and ready to blend into the wetland surface waters.
The facility design is fairly standard, consisting of three separate oxidation ponds (3.642 hectares total) that use mechanical mixing for aeration. Effluent then flows through a Rockreed filter sprinkler system for NH3 conversion to NO3, followed by conveyance into a constructed surface-flow wetland for denitrification. Final disinfection is achieved with PAA before the effluent is released into the receiving forested wetlands and marshes.
Because the rear section of the facility is just 5 feet above sea level, it is subject to tropical storm surge flooding. In 2017, the storm surge from Hurricane Ida pushed Lake Pontchartrain brackish waters into the disinfection zone, which flooded and severely damaged the TrojanUV3000Plus horizontal rack and ballast control system. Although reconditioned, the ballast modules and other sensitive electronics components have been problematic ever since. Disinfection issues are compounded by increasing flows and watercolor inconsistency that had been negatively impacting the contact time and disinfection effectiveness.
Due to declining effluent water quality and ongoing compliance issues, it was decided in mid-2024 to begin a trial using peracetic acid as the sole means of disinfection. To initiate the trial, three 300-gallon chemical totes were placed adjacent to the UV chamber, and a peristaltic pump was used to feed PAA into the collection pipe upstream of the channel. No additional mixing was needed because the elevation drop-off at the inlet pipe going into the UV chamber provided adequate turbulence for mixing. The UV racks were temporarily turned off and removed to prevent any additional disinfection interreference.
Dosing, contact time and cost analysis of PAA conversion
Working with Bill Travis of Thornton Musso and Bellemin Chemical Consultants, a flow-based dosing chart was established based on flow volume, contact time, and effluent pump cycling times. A monitoring schedule utilizes the HACH SL1000 portable parallel analyzer with Hach Peracetic Acid Chemkeys that were established both at the effluent pit and outfalls. Daily monitoring was recorded to track trends and patterns.
Once the cycle curve on the dosing was understood, the plant began a step-down process to lower the dosage and determine where the breakpoint curve began with respect to the minimum effective disinfection dose. This allowed plant operators to identify the appropriate balance without wasting PAA while still maintaining the desired fecal disinfection performance. Additionally, during the trial, plant management and staff also wanted to verify the minimum contact time required for disinfection. To do this, plant personnel adjusted the auto start/stop times for the effluent pumps. Under extreme flow conditions of 3.8 MGD, minimum contact time was sevent minutes.
Currently, the average dose is 21 mL/min with a flow of 1.478 million gallsons per day (MGD) for dry weather average, and 36 mL/min on 2.5 MGD flows for wet weather. Daily cost respectively is $109.97 per day for dry flow and $158.36 per day for wet flow as opposed to $460 per day with the UV system operating. Additionally, 97% of the average fecal readings have come back with values of less than 10 colony forming units (CFU). The facility has not had a fecal or other permit violation in 18 months as of the time of publication.
Annual cost with the UV system was $164,000 when factoring in supplies and power as compared to only $43,000 for PAA chemical cost. While the main savings are a result in reduction of consumables such as replacing the UV bulbs and other hardware every six months, the labor savings are also realized at approximately $280 per manual cleaning cycle (four maintenance workers at four hours to pull, clean and re-install twice per month) equating to additional $6,700 in payroll man hours.
New feed and storage system
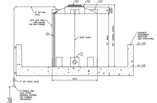
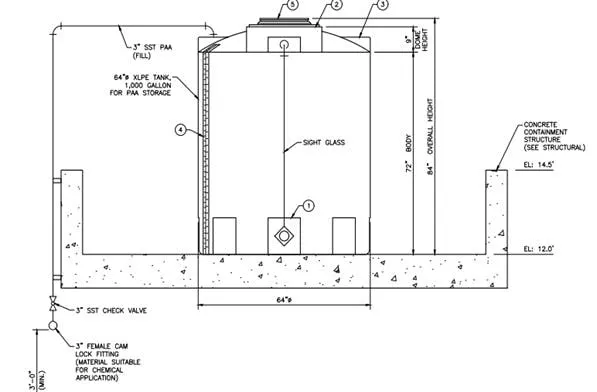
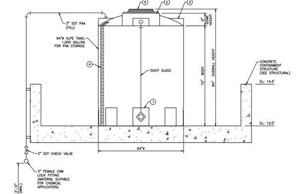
Due to the afore-mentioned flooding, Digital Engineers Sr. Project Engineer John Stein, P.E., designed the new elevated platform with containment for a 1,000-gallon storage tank; the new platform will have incorporated into its design an all weather covering as well as redundancy of the chemical feeding pump system. (drawing showing storage tank)
Monitoring the water quality for compliance
As with any chemical being introduced into our waters, deep deliberation had to be given regarding the outfall receiving water body. State permit requirement for bacterial control is standard at 200 CFU monthly average and 400 CFU weekly average. Switching to PAA warranted no permit changes.
Additionally, studies have shown that PAA reduced the estrogenicity of three major endocrine disrupting compounds (E2, EE2 and BPA) at both the bench scale and on actual wastewater. As a result, the application of PAA to control bacteria provided the additional benefit of reducing the impact of EDCs on the environment. Whereas chlorination potentially serves to increase the EDC activity of wastewater, the inactivation of EDCs by PAA makes it a preferable alternative disinfection technology for WWTPs with outflows to sensitive receiving bodies. PAA breaks down into acetic acid (a key component in vinegar) and hydrogen peroxide, which subsequently decomposes to oxygen and water.
Monitoring is critical to ensure that this new treatment process does not adversely affect the receiving wetlands. This work is overseen by Comite Resources, a wetland consulting firm with extensive experience monitoring and sampling wetland assimilation and other projects throughout Louisiana.
Through routine field sampling, data analysis, and long-term performance tracking, Comite Resources helps to ensure that these systems operate as intended and remain in compliance with regulatory requirements. The firm's monitoring also provides an early warning of potential problems, allowing adjustments to be made before adverse impacts occur. These efforts are led by Dr. John Day, Senior Scientist Emeritus at Comite Resources. Day also serves as Professor Emeritus at the Department of Oceanography & Coastal Science at Louisiana State University.
The benefits of PAA for wastewater disinfection
The system uses a bulk storage tank with a long shelf life that can be sized to match plant design capacity. Chemical feed requires only 110-volt power and uses a peristaltic metering pump, such as the Watson-Marlow QDOS pump line. Water turbidity does not affect performance, and the feed dose can be adjusted based on flow, allowing for essentially instantaneous contact. The system also requires no cleaning and needs a much shorter contact time than many conventional disinfection approaches.
With tightening cost and supply issues on UV systems, further regulations on chlorine-based disinfection byproducts, limited contact time issues, emerging concerns with EDCs and additional cost of dechlorination prior to release for most treatment facilities, the exploration of peracetic acid as a disinfection alternative should be considered as a practical option.
About the Author

Jacob Groby
Superintendent of Utilities, City of Mandeville, Louisiana
Jacob B. Groby, III is the superintendent of utilities for the City of Mandeville, Louisiana. Groby can be reached at [email protected].



